en id

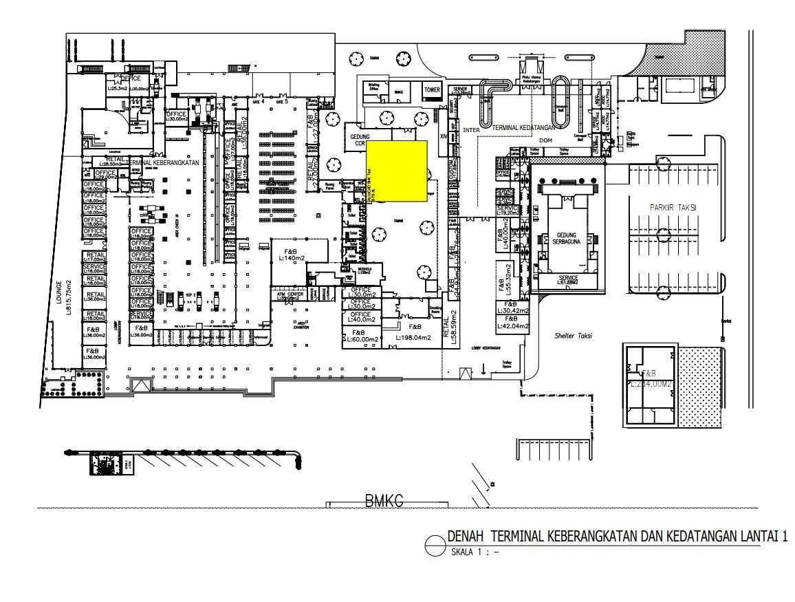
Domestic Terminal 1st Floor

> Go to International Terminal
Airport Terminal Map Menu
Domestic Terminal

FINDING THE WAY AROUND OUR AIRPORT Domestic Terminal 1st Floor

COUNSELING INFORMATION Domestic Terminal 1st Floor

TERMINAL MAP GUIDE LEVEL 1

 

HALAL FOOD

 

VEGETARIAN

 

24 HOURS

 

SERVICES
Aerotech Wrapping  B-08 & B-10
Securitytech Wrapping B-09 & B-11
AP LOG Wrapping  

 

FOOD & BEVERAGE
Bakmi Naga F-11
Beard Papa's F-10  
Coffee Club F-12
Gogo Frank R-23  
Goods Coffee F-09A  
House of Beans F-13A & F-13B  
Kopi Toea F-03A & F-03B  
My Kopi O F-05A & F-05B  
Pizza Hut F-01  
Tri Datu Taste of Bali F-02A, F-02B, F-02C, F-02D

 

TERMINAL MAP GUIDE level 2

 

HALAL FOOD

 

VEGETARIAN

 

24 HOURS

 

Lounges
  1 - Block B - 154D
Cold Storage 1 - Block A - 12F  
  1 - Block E - 123G